IDOT | US 30, US 34 to Briarcliff Road
- Electrical Engineering
- Roadway Lighting
- Intersection Lighting
- Traffic Signal Design
- Traffic Signal Interconnect
- Construction Support
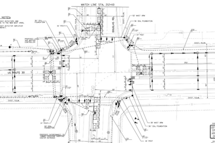
SINGH, as a subconsultant to Strand Associates, Inc., was responsible for traffic signal and lighting design along 2.7 miles of US 30. Population growth in the area required that the Illinois Department of Transportation reconstruct US 30 from one lane in each direction to two lanes in each direction separated by a raised barrier median to meet the significant growth and increased traffic volumes. The improved US 30 will improve safety and increase roadway and intersection capabilities. The project scope also included the addition of sidewalks, noise abatement walls, drainage improvements, traffic signal design, and roadway lighting.
SINGH produced final plans indicating the location of the temporary traffic signals, work zones, temporary pavement marking, and temporary video detection zones associated with each construction stage were produced. The scope required the removal of existing traffic signal equipment and replacement with new traffic signal equipment as well as the preparation of the proposed and temporary interconnect plans for five (5) intersections along the US 30 corridor.
In addition, SINGH provided temporary and permanent lighting design for two intersections and provided RFI review during construction.
